Banesë në SHITJE me FLETË POSEDUESE – 3 dhoma gjumi – Fushë Kosovë - Access Ks

Banesë në SHITJE me FLETË POSEDUESE – 3 dhoma gjumi – Fushë Kosovë

, Fushë Kosovë
For Sale
79,000 €

Description

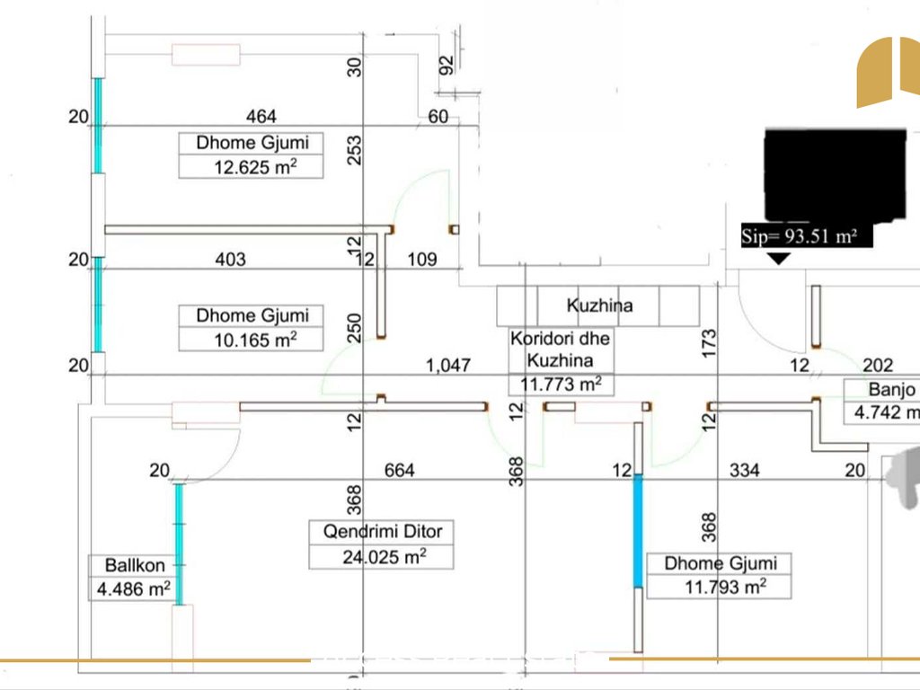
Banesa gjendet në Fushë Kosovë, Rr."Nëna Terezë" . Ka sipërfaqe prej 93.51m² ndërsa ndodhet në katin e 5-të. Objekti banesor është i pajisur me ashensor funksional kurse sistemin e ngrohjes e ka me energji elektrike. Ndodhet në afërsi të shumë shërbimeve të nevojshme për banorë dhe ka qasje të lehtë në rrugë.

Banesa përbëhet nga:
– Sallon,
– Kuzhinë,
– 3 dhoma gjumi,
– Banjo,
– Terasë.

Mund të na kontaktoni nga ora 09:00 – 19:00
Kontakt
049 615 666
www.access-ks.com
[email protected]
Prishtinë, Rr. "Ukshin Hoti” Kati 1/6-1
Fushë Kosovë, Rr. "Besa Besë” Lokali 3-4

Additional Information

  • Status: New
  • Apartment
  • 3 Bedrooms
  • Bathroom
  • 94 m2
  • 1565 Views
ID: PROAC8447
Interior area: 94
Floor: 5
Availability: Available
Living Rooms: 1